
지난 포스팅에서는 임차권등기명령이 무엇이고, 왜 전세사기 예방 및 보증금 보호를 위해 반드시 필요한 절차인지 살펴보았습니다.
또한 등록면허세 납부, 등기수수료 납부, 등기사항전부증명서 발급까지의 1부 내용을 정리해드렸죠.
이제 이어지는 이번 글에서는 임차권등기명령 신청을 완료하기 위해 남은 핵심 단계, 즉
- 건축물현황도 발급
- 임대차계약서 구비
- 법원 전자소송을 통한 실제 신청
임차권등기명령 신청은 준비 서류가 정확해야만 법원에서 사건을 빠르게 처리할 수 있습니다.
<목차>
1. 임차권등기명령이란?
2. 임차권등기명령 신청 방법★
2-1. 등록면허세 납부
2-2. 등기수수료 납부
2-3. 등기사항전부증명서 발급
------------------------------------------------------------<1부>
2-4. 건축물현황도 발급
2-5. 임대차계약서 구비
2-6. 임차권등기명령 신청(전자소송)★★
3. 임차권등기명령 그 후..
------------------------------------------------------------<2부>
2-4. 건축물현황도 발급
임차권등기명령 신청 시 가장 많은 분들이 헷갈려하는 부분이 바로 **‘건축물현황도’**입니다.
건축물현황도란 건물의 실제 구조(층수, 호수, 각 세대 배치 등)를 도면 형태로 보여주는 문서입니다.
법원은 이를 통해
- 임차인이 해당 공간을 실제로 임대했는지
- 건물 내 어느 위치의 점유를 주장하는지
여부를 확인하게 됩니다.
따라서 임대차의 정확한 위치를 표시하는 작업이 꼭 필요합니다.
▷ 준비물
건축물현황도를 발급하기 위해서는 아래 파일 2가지만 준비해두면 됩니다.
- 신분증 사본(사진 파일 가능)
- 임대차계약서 사본(스캔 또는 사진 파일)
▷ 발급절차
① 건축행정시스템 세움터 홈페이지(https://www.eais.go.kr/)에 접속합니다.
우측에 '건축물대장'이라고 나와있는 탭을 클릭합니다.
(원래는 아래 화면처럼 상단에 '민원서비스'로 들어가면 되지만, 가끔 위 상단 메뉴바가 활성화 되어 있지 않습니다.)
'건축물현황도 발급' 탭을 클릭합니다.

② 로그인 유형을 선택하는 화면이 나옵니다.
'비회원 발급'을 선택합니다.
(회원 발급을 선택하셔도 무관합니다. 대신 회원가입 절차는 감수해야 할듯..)

그리고 이름 및 주민등록번호 등을 기재합니다.

③ 발급유형을 선택합니다.
우리는 임차인이기 때문에, 가운데 '본인소유가 아닌 건축물'을 선택합니다.

④ 상단 파란박스에 건축물소재지를 입력합니다.

그리고 조회결과가 나오면, 본인이 임대차계약에 해당하는 부분을 선택하고 '신청할 민원 담기'를 클릭합니다.

오른쪽 상단에 '신청할 민원'에 있는 평면도를 확인하고, '건축물현황도 발급 신청'을 클릭합니다.

⑤ 우리는 열람이 아닌 발급을 원하므로, '건축물 현황도를 발급합니다.'를 선택합니다.
그리고 신청인 자격에는 '해당 건축물의 임차인(賃借人)이 신청하는 경우'를 선택합니다.
그러면 바로 파일을 첨부할 수 있도록 '+추가' 버튼이 생기는데,
여기에 미리 준비했던 신분증 사본과 임대차계약서를 첨부합니다.

⑥ 건축물대장 신청내역을 확인합니다.
담당공무원이 확인후 처리가 완료되면 발급이 가능합니다.

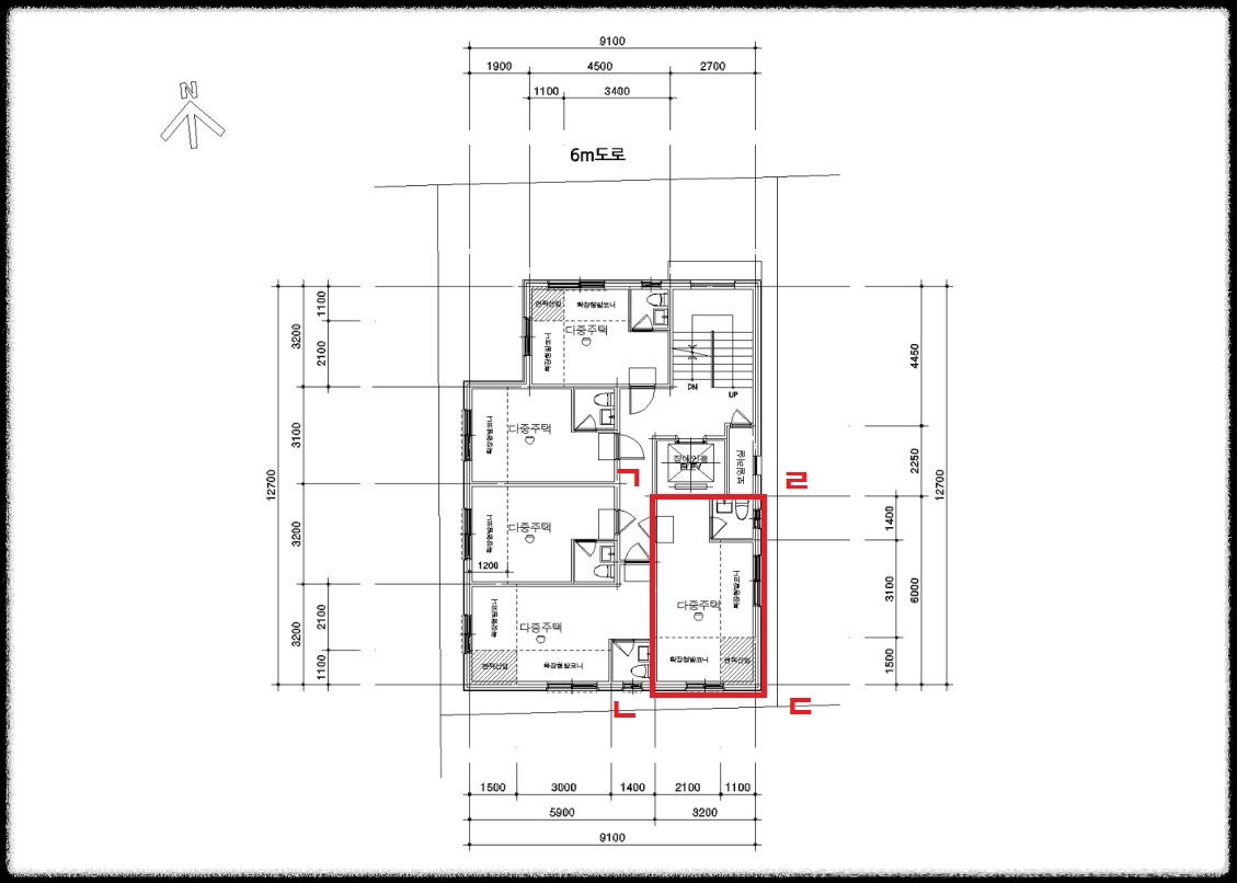
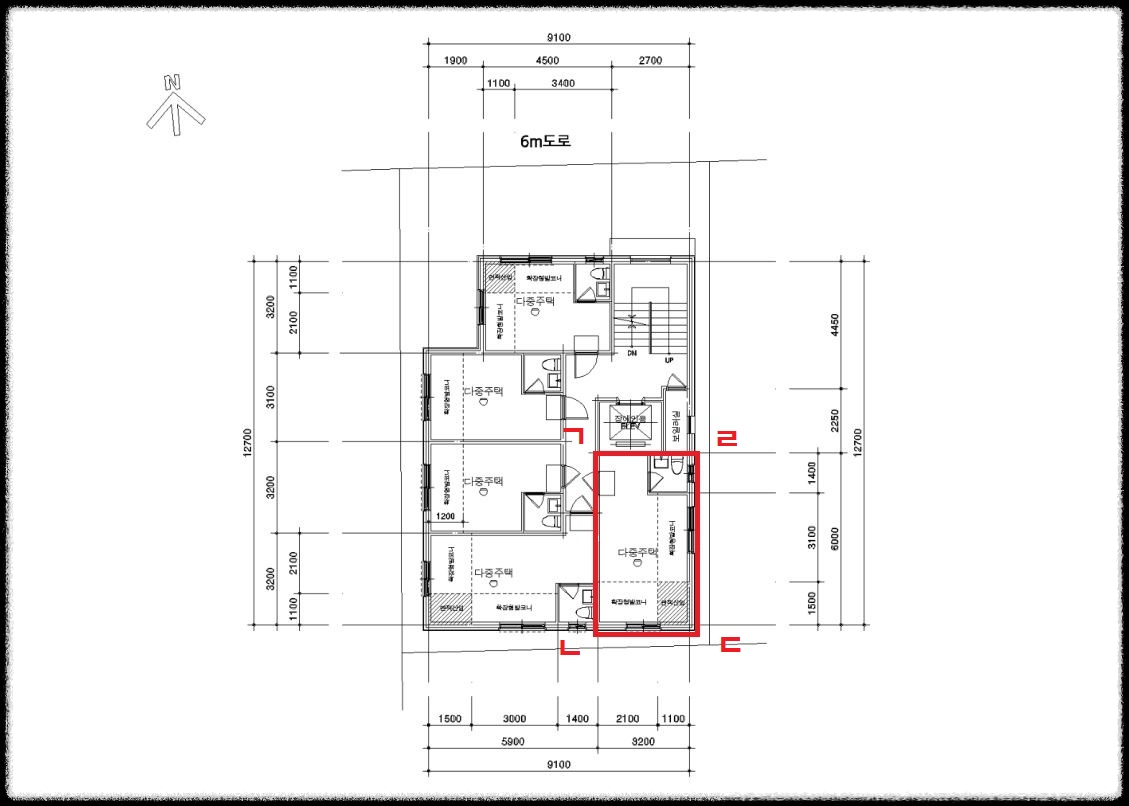
⑦ 마지막단계입니다. 발급받은 건축물현황도에서 임대차계약한 해당 부분을 표시하여 줍니다.★
임차권등기명령 신청시 해당 부분을 특정하여야 하기 때문에 꼭 필요합니다.
간단하게 그림판을 통해서 작업하시면 됩니다.
아래 그림과 같이 ㄱㄴㄷㄹㄱ순으로 묶어서 표시합니다.
텍스트 삽입하기를 통해서 만들어 주세요.

2-5. 임대차계약서 구비
임차권등기명령 신청에서 ‘임대차계약서’는 가장 핵심적인 기본 서류입니다.
왜냐하면 임차권등기를 통해 임차인의 대항력과 우선변제권을 유지하려면 임대차관계의 존재와 주요 내용을 법원에 명확히 증명해야 하기 때문입니다.
① 반드시 원본 또는 스캔본을 준비
임대차계약서는 다음과 같은 정보가 포함되어야 합니다.
- 임대인·임차인 성명
- 주소(임대차 목적물 주소)
- 보증금·차임 금액
- 계약기간
- 확정일자 여부
- 특약사항
스캔본 또는 선명한 사진 파일 형태로 제출하면 됩니다.
② ‘확정일자’가 있다면 반드시 표시된 계약서를 제출
임차권등기명령은 우선변제권 유지가 관건이므로, 확정일자를 받은 계약서를 제출하면 법원에서 사실관계를 확인하는 데 큰 도움이 됩니다.
- 주민센터·법원·등기소 등에서 받은 확정일자 도장
- 전자계약의 경우 자동확정일자가 표시된 파일
중요한 보호 장치이니 꼭 포함시키세요.
③ 계약 변경 사항이 있다면 ‘변경계약서’도 함께 제출
다음과 같은 경우에는 변경계약서 또는 갱신계약서도 함께 첨부해야 합니다.
- 보증금 증액 또는 감액
- 임대인 변경(양도·매매 등)
- 계약갱신(갱신계약 체결)
법원 입장에서는 ‘최종 계약 내용’이 무엇인지 확인해야 하기 때문에, 여러 번 갱신했다면 마지막 계약서가 핵심입니다.
④ 임대인 정보 확인(공동명의 여부 포함)
계약서에 기재된 임대인의
- 이름
- 주민등록번호
- 주소
는 전자소송 시스템의 ‘피신청인 정보’와 완벽히 일치해야 오류 없이 접수됩니다.
특히 다음 상황을 반드시 체크해야 합니다.
º 공동명의 주택인 경우
→ 계약서 내 공동명의자 모두 전자소송 피신청인란에 입력해야 합니다.
º 임대인 주소가 변경된 경우
→ 송달 오류를 막기 위해 ‘현재 주소’를 확인해 입력해야 합니다.
⑤ 계약서가 분실된 경우 대처방법
혹시 원본 계약서를 분실했다면 다음과 같은 방법으로 대체 가능합니다.
- 임대인에게 재발급 요청
- 부동산 중개업소에서 사본 확보
- 전자계약의 경우 ‘부동산거래관리시스템’에서 재발급
계약서가 없는 경우 임차권등기명령 신청이 불가능하므로 꼭 확보해야 합니다.
⑥ 첨부 시 주의사항
- 글씨가 흐리거나 촬영 각도가 어두운 사진은 되도록 피할 것
- 계약서 여러 장일 경우 반드시 순서대로 하나의 PDF로 합쳐 제출
- 개인정보(주민번호 등)는 마스킹하지 않고 그대로 제출해야 함(법원은 원본 확인이 필요함)
2-6. 임차권등기명령 신청(전자소송)★
이제 드디어 임차권등기명령을 실제로 법원에 제출하는 마지막 단계,
즉 법원 전자소송 시스템을 통한 ‘임차권등기명령 신청’을 진행해보겠습니다.
전자소송 절차는 처음 접하면 복잡해 보이지만, 순서대로 하나씩 따라오면 누구나 10~20분 안에 신청할 수 있습니다.
중요한 항목만 정확히 입력하면, 나머지는 자동으로 채워지기 때문에 크게 어렵지 않습니다.
① 법원 전자소송 사이트(https://ecfs.scourt.go.kr/psp/index.on)에 접속하여 로그인 한 후, '민사신청' 탭으로 들어갑니다.

'민사신청' 화면이 나오면 '주택임차권등기명령신청' 을 선택 클릭합니다.

'당사자 작성'을 클릭합니다.
대리인 작성시에는 '대리인 작성'을 선택하세요.

② 주택임차권 등기명령 신청에 대한 서류 작성
- 사건기본정보
- 등록면허세
- 등기촉탁수수료
- 선담보
- 당사자
- 법정대리인
- 신청취지
- 신청이유
- 목적물
- 소명서류
- 첨부서류
이렇게 총 11가지 사항을 입력하여 주어야 합니다.
- 사건기본정보
'관할법원 찾기'를 클릭하여 법원을 선택하여 줍니다.

- 등록면허세
'시도코드'를 선택 후 '등록세납부번호'만 입력하면 나머지는 자동적으로 입력이 됩니다.
그리고 '등록' 버튼까지 클릭합니다.
(등록세납부번호는 이전에 우리가 위택스에서 결제했던 '납세번호'를 보고 입력합니다)

- 등기촉탁수수료
'등기촉탁수수료 입력' 버튼을 클릭합니다.
납부구분을 '전자'로 선택한 후, 인터넷등기소에서 납부했던 '납부번호'를 입력하고 납부확인을 클릭합니다.
나머지는 자동으로 입력됩니다.
'등록' 버튼까지 클릭합니다.

- 선담보
대부분의 임차권등기명령은 선담보는 면제됩니다.
즉, 집주인이 받을 수 있는 피해를 대비해 담보를 내라는 절차가 거의 요구되지 않습니다.
따라서 화면에서 별다른 입력 없이 넘어가는 경우가 많습니다.
- 당사자
먼저 신청인에 체크한 후, '내정보 가져오기'를 클릭합니다.
'등록' 버튼까지 클릭합니다.

그리고 피신청인의 정보는 구비한 '임대차계약서'를 보고 작성합니다.
해당 부동산이 공동명의인이라면, 공동명의인을 피신청인란에 추가하여 모두 적어줍니다.
(특별한 사정이 없으면 주민번호까지 기재해주세요)
'등록' 버튼까지 클릭합니다.
**피신청인의 정보는 주민번호, 주소&송달주소, 연락처를 한번 더 확인하고 등록하세요!!!
- 법정대리인
당사자가 미성년자인 경우에는 법정대리인까지 모두 입력하여 줍니다.
법정대리인의 정보를 모를 경우, 법원의 보정명령을 통하여 나중에 입력하여도 무방해요.
- 신청취지
작성 항목에 나와 있는 임대차계약일자, 임차보증금액, 차임 등을 본인 상황에 맞게 작성하여 줍니다.
여기서 점유개시일자는 내가 이사온 날을 기재하시면 됩니다.

- 신청이유
신청이유 양식에 나와 있는 것을 본인 상황에 맞게 수정하여 작성해주세요.
신청취지를 뒷받침하는 내용이 들어가는 부분입니다.
신청이유 부분에 불필요한 기재(심정적인 부분)를 하는 것은 절대 비추입니다.
법원은 사실만 확인하기 때문에 간단·명료가 핵심입니다.

- 목적물
여기서 우리가 이전에 인터넷등기소에서 발급받은 '(등기)고유번호'와 '발급(확인)번호'를 기재합니다.
그러면 나머지는 자동으로 입력됩니다.
'등록' 버튼까지 클릭합니다.

- 소명서류
소명서류에는 임차권등기명령을 하려하는데에 증명할 서류들을 넣어줍니다.
해지통보 문자, 내용증명서, 내용증명 배송완료내역 등, 법원에 “왜 임차권등기명령이 필요한지”를 설명할 수 있는 자료를 넣습니다.
- 첨부서류
첨부하여야 할 필수서류는 다음과 같습니다
ㄱ) 부동산등기부등본(이건 자동으로 첨부되어 있음)
ㄴ) 주민등록등본(신청인 본인에 대한 것)
ㄷ) 임대차계약증서 사본(확정일자 받은경우 확정일자 포함된 것으로)
ㄹ) 건축물현황도(임차부분 표시 ㄱㄴㄷㄹㄱ 순으로.. 이전 포스팅 참고)
ㅁ) 등록면허세 영수필통지서
모든 파일을 올린 후 ‘등록’ 버튼을 클릭합니다.

③ 작성문서 확인 단계입니다.
본인이 작성한 문서를 확인한 후 수정사항이 있으면 이전 단계로 가서 수정할 수 있습니다.
수정사항이 없다면 '확인완료' 버튼으로 넘어가주세요.

④ 마지막으로 소송비용 납부입니다.
'가상계좌'를 선택하고 납부당사자 등 나머지 사항을 모두 기입한 후 '소송비용납부' 버튼까지 클릭합니다.


⑥ 마지막으로 문서제출까지 하게 되면 '임차권등기명령 신청'은 완료됩니다.
최종적으로 확인한 후, '문서제출' 버튼을 클릭합니다.

3. 임차권등기명령 그 후...
이번 시리즈에서는 임차권등기명령의 개념부터 실제 신청 절차까지, 전세보증금을 안전하게 지키기 위해 꼭 알아야 하는 전 과정을 하나씩 자세하게 안내해드렸습니다.
임차권등기명령은 복잡해 보이지만, 실제로는 정확한 준비 → 전자소송 신청만 거치면 누구나 스스로 진행할 수 있는 절차입니다.
특히 전세사기 피해가 증가하는 요즘, 이 제도는 임차인의 대항력과 우선변제권을 지켜주는 최후의 보호장치이기도 합니다.
따라서 집주인이 보증금을 제때 반환하지 않거나 연락이 닿지 않는 상황이라면 망설이지 말고 반드시 임차권등기명령을 활용하시길 바랍니다.
여기까지 절차를 모두 완료하셨다면, 이미 보증금을 지키기 위한 가장 중요한 첫걸음을 스스로 해내신 것입니다.
그리고 아직 보증금을 돌려받지 못한 상태라면 이제 다음 단계는 지급명령 또는 민사소송 절차입니다.
혼자서도 충분히 진행할 수 있는 방법이 있으니 차근차근 따라오면 됩니다.
앞으로도 전월세 문제, 전세보증금 반환, 전세사기 예방과 관련된 실제로 도움이 되는 정보들로 계속 찾아뵐게요.
궁금한 점이나 추가로 다뤄줬으면 하는 내용이 있다면 언제든지 댓글로 남겨주세요!
읽어주셔서 감사합니다 :)
'민사신청등 > 임차권등기명령' 카테고리의 다른 글
| [내손소송] 임차권등기명령 신청방법 총정리①|전세사기 예방·보증금 안전하게 돌려받는 법 (1) | 2025.12.08 |
|---|
